奥睿德建筑机电支撑系统综合服务商
Integrated Service Provider of Building Electromechanical Support System
7*24小时服务热线:
0757-86792971

抗震支架安装与施工

发表时间:2021-07-29 12:22


近年来,我国多地陆续出现强震,给人民带来巨大的损失,老百姓深受灾难。如何保障建筑不在地震时发生雪崩式的倒塌,保证地震时结构不发生整体崩溃,尽量减少因地震引起的建筑结构次生灾害对人员伤亡和经济损失,成了当前研究抗震工作的重中之重。而建筑机电抗震在整体的建筑结构抗震中起到至关重要的作用。


所以,在建筑本体具有高性能抗震的基础上,机电设备的抗震必须配套施行,抗震支架的使用就是对机电设备的抗震性能的可靠保证。


特点及适用范围


一、工法特点

1.1
施工步骤

  测量→下料→吊点栓胀安装→垂直向吊杆安装→横担(或管卡)安装→侧向、纵向加固件安装。

1.2
操作要点


(1)管道和电线套管允许纵向偏移,但不得超过最大侧向支撑间距的1/6;风管允许偏差,但不得超过风管风度的2倍。

(2)水平管道在90°转弯时,需设抗震支吊架;其他角度转弯长度大于抗震设计间距的1/16
时,需设侧向及纵向抗震支吊架。

(3)计算水平地震力荷载时,只需满负荷重量而不需要考虑其他因素。

(4)抗震吊架不限制管线热胀冷缩产生的应力,当把热胀冷缩因素考虑在内时,纵向吊架应在构件选型上考虑所选型号应能抵抗管线热胀冷缩应力。

(5)保温管线的抗震吊架管码需按保温后的尺寸考虑,门型吊架用于保温风管、水管亦按此考虑。

(6)用于刚性的管道抗震支撑不能安装于建筑的不同结构部位或功能部位,否则会因地震作用而产生不同的位移。

(7)单管抗震支撑双向侧向或纵向或具有侧/
纵向作用的拐点抗震支撑,应直接与管线或电线套管连接。应注意支管或小一级管线的支撑不能作为主管的抗震支撑,即不能作为另一方向(主管)的支撑。

(8)管线穿越建筑沉降缝时,应考虑沉降位移设计。

(9)侧/
纵向斜撑安装的最佳垂直角度为45°,可根据现场实际情况适当调整。

(10)对水、电、风系统的单管或多管共用门型吊架,无论侧向/
纵向斜撑,斜撑偏离中心线2.5°时不会影响其承载力。


工艺流程


二、适用范围

各种室内停车场、商场等大型室内公共场所。


住宅楼、办公楼的地下车库及主楼公共部位等公共场所。


工艺流程图


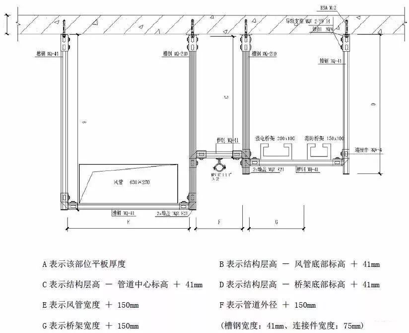
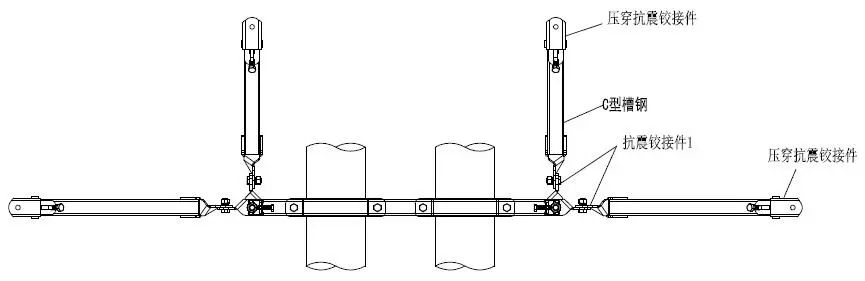
抗震支架图例


抗震支架细部节点深化设计图


槽钢下料大样图

管束扣垫安装大样图

带调节齿管束安装大样图


效益分析


1、工期效益

公共部位综合管线支架传统做法需经过除锈、尺量下料、打孔、切口打磨、焊接、焊渣清理、焊缝处理、喷漆防腐、晾干等工序后才可投入使用;抗震支架采用成品镀锌槽钢、螺杆,在安装加工区定尺下料可直接进行拼装组合,待施工现场支架定位完成后,可直接进行支架安装施工,同传统支架施工做法相比,工期节约2~3倍。


2、经济效益

抗震支架采用标准化生产,拼装组合操作简单,架体安装过程中可以节省大量的人工,以诚国际项目为例,本工程地下室应用了抗震支架共计1025架,人工对比如下表:


支架安装传统工艺与抗震支架人工用量对照表

抗震支架安装所需的人工量比传统支架安装所需人工用量节省
(102.5
-
34.2)÷102.5×100%=66.7%,大大降低抗震支架安装的用工量。


3、安全文明施工效益

1、架体所有构件均采用含有镀锌层的钢制材料,不仅大大提高了架体的防火性能,而且整个工程没有耗材,所有材料均能重复使用,真正实现了“零耗损”的环保目标,响应了国家节能减排绿色施工的号召。


2、抗震支架无需焊接、喷漆防腐,无火源及易燃品对施工人员及周围空间影响较小。


3、抗震支架外形美观,能够较好的改善了现场文明施工形象。



广东奥睿德科技发展有限公司
Guangdong Orride Technology Development Co., Ltd.
营销中心:广东省佛山市南海区创越时代文化创意园4座 11 楼 销售热线:0757-86792971 公司总部:广东省佛山市三水区乐平镇南边工业大道与三水大道交界处 总部热线:0757-87756225 邮箱:info@orride.com