奥睿德建筑机电支撑系统综合服务商
Integrated Service Provider of Building Electromechanical Support System
7*24小时服务热线:
0757-86792971

抗震支架各种系统的设计规范及误区解读

发表时间:2021-08-15 12:22


给排水系统


为防止地震时给排水管道系统及消防管道系统失效或跌落造成人员伤亡及财产损失,根据《建筑抗震设计规范》(GB50011-2010)第1.0.2条、第3.7.1条及《建筑机电工程抗震设计规范》(GB50981-2014)第1.0.4条等强制性条文,应对机电管线系统进行抗震加固。本项目对直径≥DN65的管道设置抗震支吊架,且此项目抗震支吊架产品需通过FM认证,与混凝土、钢结构、木结构等须采取可靠的锚固形式,具体深化设计由专业公司完成。


抗震支吊架的设置原则为:新建工程刚性管道侧向抗震支撑最大设计间距12米,纵向抗震支撑最大设计间距24米,柔性管道上述参数减半;(为保证抗震系统的整体安全性,对长度低于300mm的吊杆,也建议进行适当的补强);最终间距根据现场实际情况在深化设计阶段确定。所有产品需满足《建筑机电设备抗震支吊架通用技术条件》CJ/T476-2015。安装示意图如下:



暖通专业


为防止地震时风管系统及空调管道系统失效及跌落造成人员伤亡及财产损失,根据根据《建筑抗震设计规范》(GB50011-2010)第1.0.2条、第3.7.1条及《建筑机电工程抗震设计规范》(GB50981-2014)第1.0.4及5.1.4条为强制性条文,应对机电管线系统进行抗震加固。本项目所有直径大于0.7m的圆形风管系统;所有截面积大于0.38m2的矩形风管;大于DN65的所有空调水管都应设置抗震支吊架,且此项目抗震支吊架产品需通过FM认证,与混凝土、钢结构、木结构等须采取可靠的锚固形式。


抗震支吊架的设置原则为:风管的侧向支撑最大间距9米,纵向支撑最大间距18米,(为保证抗震系统的整体安全性,对长度低于300mm的吊杆,也建议进行适当的补强),具体深化设计由专业公司完成,最终间距根据现场实际情况在深化设计阶段确定。所有产品需满足《建筑机电设备抗震支吊架通用技术条件》CJ/T476-2015。安装示意图如下:



电气专业


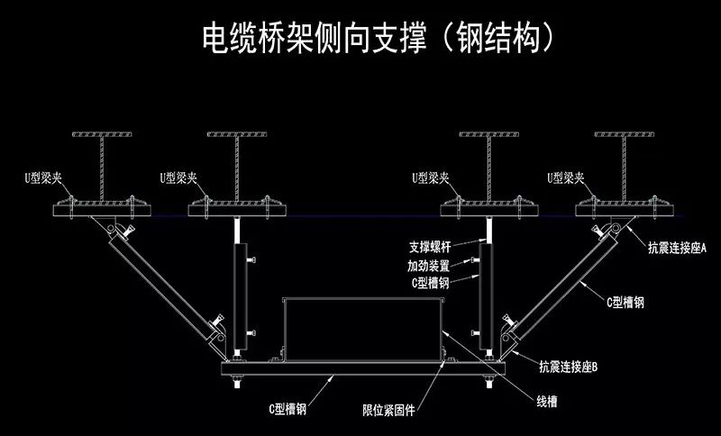
为防止地震时电力系统失效、短路及起火造成人员伤亡及财产损失,根据《建筑抗震设计规范》(GB50011-2010)第1.0.2条、第3.7.1条及《建筑机电工程抗震设计规范》(GB50981-2014)1.0.4及7.4.6条为强制性条文,应对机电管线系统进行抗震加固。本项目重力超过1.8kN的设备;内径大于等于DN60mm的电气配管;15Kg/m或以上的电缆桥架、电缆梯架、电缆线盒、母线槽都应设置抗震支吊架,且此项目抗震支吊架产品需通过FM认证,与混凝土、钢结构、木结构等须采取可靠的锚固形式。


抗震支吊架的设置原则为:刚性电力线管侧向支撑最大间距为12m,非刚性电力线管侧向支撑最大间距为6m,刚性电力线管纵向支撑最大间距为24m,非刚性电力线管纵向支撑最大间距为12m。(为保证抗震系统的整体安全性,对长度低于300mm的吊杆,也建议进行适当的补强)。具体深化设计由专业公司完成,最终间距根据现场实际情况在深化设计阶段确定。所有产品需满足《建筑机电设备抗震支吊架通用技术条件》CJ/T476-2015。安装示意图如下:



抗震支架必要性的误区和解读?


误区1:有结构抗震,还须抗震支架么?


解读:
结构抗震是基础,抗震支架是内核。国内外历次地震的历史数据表明,忽略抗震支架,因其次生灾害如坍塌、火灾、爆炸、气体泄露等造成的生命财产损失高达七成。


误区2:我所在的区域几十年似乎都没有地震过,没有必要抗震支架吧?


解读:这是一个常识错误,打开“中国地震信息网”我们可以看到,中国属于多震地带,每天都有不同程度的地震。汶川地震告诉我们,首先要做到的是“防患于未然”,抗震支架保护的是人民生命财产安全,事关国计民生。在发达国家,机电设施都需要做抗震设计,在日本连家居都有相应的抗震设计要求。


误区3:目前有很多建筑还没有装上抗震支架,我可以不装么?


解读:GB50011-2001《建筑抗震设计规范》已经将建筑抗震支架纳入抗震设计范围之内,汶川地震后,国家先后多次修订结构抗震标准,又在2014年正式颁布了《建筑机电工程抗震设计规范》,明文要求“抗震设防烈度为6度及6度以上地区的建筑机电工程设施必须进行抗震设计”。该标准自2015年8月1日起实施,也就意味着2015年8月份之后的建筑必须要进行抗震支架设计。这是一个时间分水岭,属于国家意志和战略要求,不可掉以轻心,否则担责。


误区4:做抗震支架,势必要增加预算,业主方不同意怎么办?


解读:
《建筑机电工程抗震设计规范》是由国家住建部颁布的强制性执行标准,日前很多省市也在作宣导和要求,意在“减轻地震破坏,防止次生灾害,避免人员伤亡,减少经济损失”。既然是强标,设计院必须要做到设计,业主方也须列出预算,将来也是建筑物验收和承保的必要条件。这丝毫不容“偷工减料”,将来哪个环节出了问题,势必也会追究到相应的责任,而且现在属于“终身责任制”。抗震支架的预算在整个造价里并不高,切勿因小失大。



广东奥睿德科技发展有限公司
Guangdong Orride Technology Development Co., Ltd.
营销中心:广东省佛山市南海区创越时代文化创意园4座 11 楼 销售热线:0757-86792971 公司总部:广东省佛山市三水区乐平镇南边工业大道与三水大道交界处 总部热线:0757-87756225 邮箱:info@orride.com